Skip to content
NOARD6
HOME
Appartementen
In de omgeving
Interesse
Contact
NOARD6
HOME
Appartementen
In de omgeving
Interesse
Contact
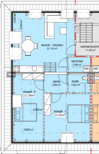
app1
Home
Properties
Appartement Foar Best Op
app1